Санкт-Петербург

Аренда торгового помещения, Комсомола ул., д.2А

Телефон
+7 (812) 7407040
Метро
пл. Ленина
Площадь
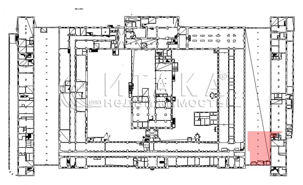
666.7 м2
Цена
650 тыс. руб./мес.
Информация об объекте
4-02240 номер объекта в Базе Агентства
Предлагается в аренду уникальное редкое коммерческое помещение с высокими сводами потолка.,
Помещение площадью 666.7 кв. м расположено на территории культурно - развлекательного кластера.
Отдельный вход с улицы Комсомола.
Высокие сводчатые потолки и арочные окна - редкость для центра города, позволят разместить социально - привлекательный бизнес спортивного, ресторанного, танцевального направления.
Проведены инженерные системы и коммуникации, интернет и телефония, есть возможность для размещения всех необходимых санитарных коммуникаций.
Планировки и ремонт согласовываются под Арендатора. На период ремонта предоставляются арендные каникулы.
Здесь уже открыты концертные и банкетные залы, скалодром и кафе.
Охрана круглосуточная.
Производства и склады не рассматриваем.
Показы по предварительной договоренности.
Подробная информация
Электричество есть
Отопление есть
Канализация есть
Этаж 1
Этажей всего 1

Новости рынка элитной недвижимости
Элитное жилье — Москва
Другие проекты LifeDeluxe
Проект LifeDeluxe объединяет порталы об элитной недвижимости двух столиц и представляет рынок статусной недвижимости за рубежом. Лучшее на рынке жилой и коммерческой недвижимости Москвы и Московской области вы найдете на msk.lifedeluxe.ru. Самые выгодные предложения об инвестициях в недвижимость за границей собраны на world.lifedeluxe.ru. Мы помогаем сделать правильный выбор.
Аналитика и обзоры рынка