Санкт-Петербург

Партизана Германа ул., д.32к2А

Продажа квартиры бизнес-класса, 367 м2
46.9 млн. руб.
RUB
127 793 руб. за м2
+7 (812) 3333999
Площадь
367 м2
Этаж
1
Задать вопрос
+7 (812) 3333999

ID: 1915464
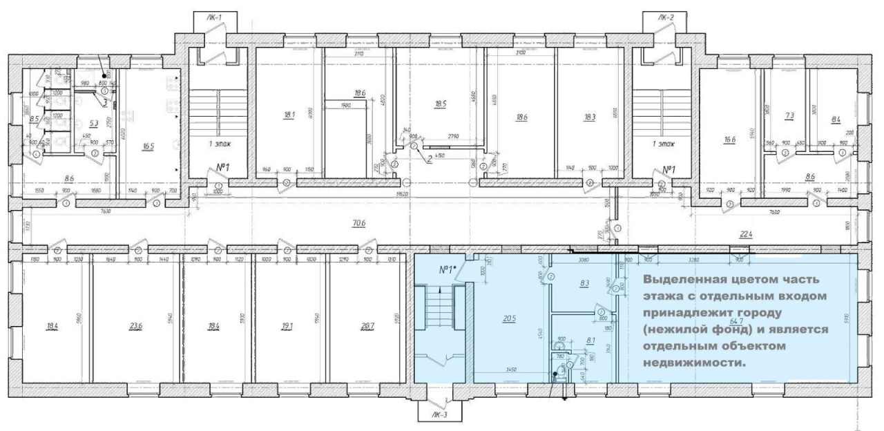
К продаже предлагается коммунальная квартира с окнами на три стороны в доме сталинской эпохи 1954 г. п. (бывшее общежитие). Поскольку продаваемый объект занимает почти весь первый этаж и имеет по плану два крыла и два входа, он прекрасно подойдет под любые бизнес-цели: это может быть как представительский офис, так и апартаменты или мини-отель. На плане выделенная цветом часть этажа - городское имущество, переведенное в нежилой фонд, является отдельным объектом недвижимости.
Дом расположен в тихом зеленом месте в окружении таких же "сталинок". В трех минутах - ж/д станция Лигово, от которой очень быстро можно добраться и до центра (ст. м. Балтийская), и до главных достопримечательностей в окрестностях Петербурга - Стрельны, Петергофа, Ораниенбаума.
Поблизости также остановки общественного транспорта с удобным сообщением в разные направления. В шаговой доступности - вся инфраструктура, обеспечивающая комфортное проживание и доступ к необходимым услугам и развлечениям: СФР, налоговая, школы, д/сады, магазины, кафе, аптеки, кинотеатр, Фитнес-хаус с бассейном, каток Ледовая арена и Рубеж.
Очень благоприятна и экологическая обстановка Красносельского района: скверы, парки, близость Финского залива, отсутствие вредных производств и удачная роза ветров дарят ему чистый воздух.
В квартире шесть комнат, в которых люди проживают на постоянной основе. Седьмая комната (19.1 кв. м) принадлежит городу и в данный момент не используется.
Ремонты по дому: в 2017 г. обновлена крыша; в следующем году планируется ремонт центрального отопления и систем водоотведения.
Звоните, ответим на все интересующие вас вопросы и, конечно, приглашаем на просмотры.
При необходимости поможем с переводом объекта в нежилой фонд.

Подробнее
Подробные характеристики
Этаж 1 Общая площадь 367 кв.м.
Жилая площадь 136.6 кв.м. Число комнат 7
Площадь кухни 16.5 кв.м. Состояние ремонта Косм. ремонт
Район Красносельский
Размещено более месяца назад
Партизана Германа ул., д.32к2А
+7 (812) 3333999
Позвонить
Новости рынка элитной недвижимости
Элитное жилье — Москва
Другие проекты LifeDeluxe
Проект LifeDeluxe объединяет порталы об элитной недвижимости двух столиц и представляет рынок статусной недвижимости за рубежом. Лучшее на рынке жилой и коммерческой недвижимости Москвы и Московской области вы найдете на msk.lifedeluxe.ru. Самые выгодные предложения об инвестициях в недвижимость за границей собраны на world.lifedeluxe.ru. Мы помогаем сделать правильный выбор.
Аналитика и обзоры рынка