Санкт-Петербург

Продажа торгового помещения, Кустодиева ул., д. 5

Продавец
Телефон
+7 (812) 3330243
Метро
пр. Просвещения
Площадь
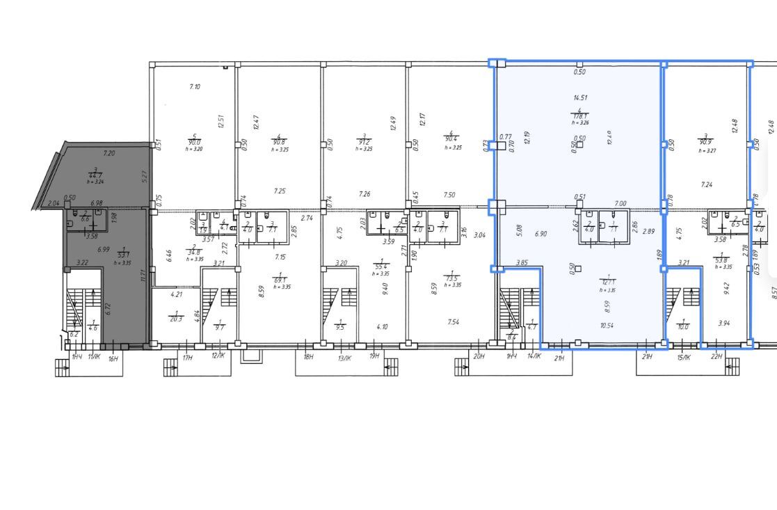
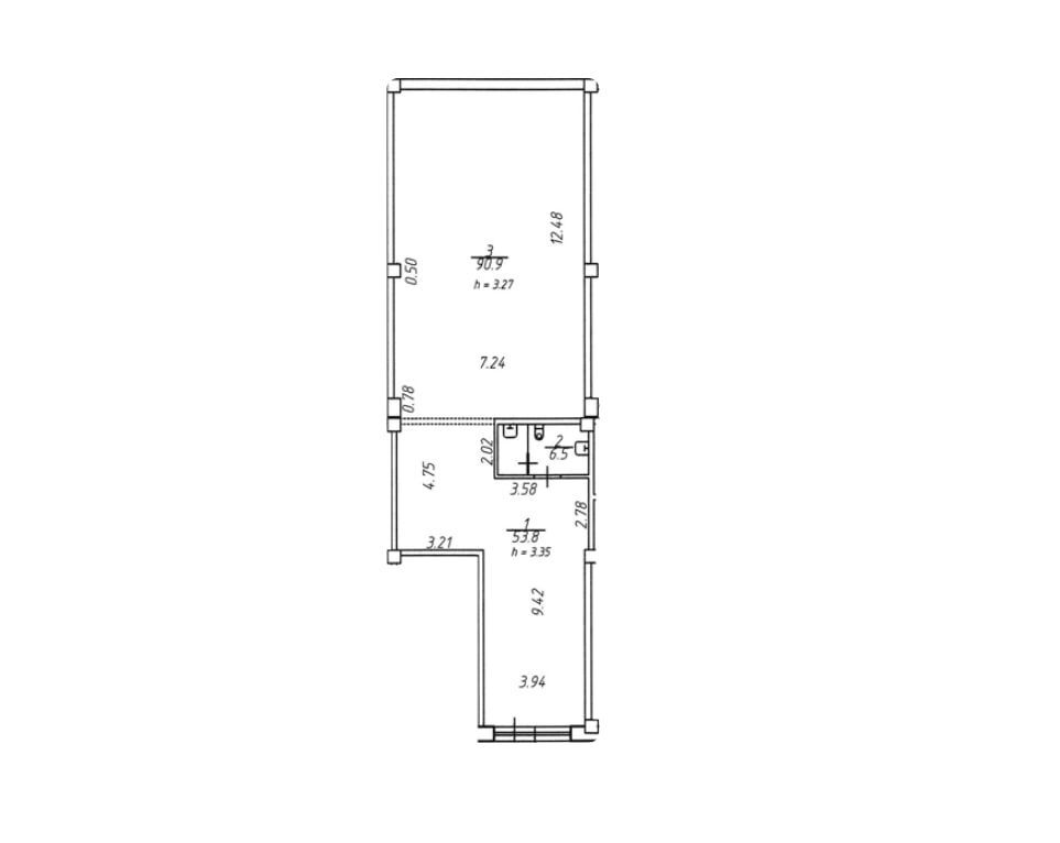
467 м2
Цена
132.2 млн. руб.
Информация об объекте
ID: 832395
Продается торговая площадь 467 кв. м в Выборгском районе Санкт-Петербурга. Объект с выходами на оживленную улицу с возможностью бесплатной парковки. Находится в ЖК комфорт-класса, численностью около 10 тысяч жителей.
Помещение - получается объединением двух кадастровых номеров - это 3 (три) входа и возможность для подсобного помещения с отдельным входом с погрузочно-разгрузочной зоной.
Высота помещения - 3.35 метра, что соответствует требованиям большинства торговых площадей. Витражное остекление обеспечивает естественное освещение и презентабельный внешний вид фасада. Внутренняя планировка правильной формы позволяет рационально использовать пространство. Объект подключён к городским коммуникациям — водоснабжение, канализация, теплоснабжение и электроснабжение. Электрическая мощность составляет 47.21 кВт. В наличии также мокрые точки, что расширяет возможности для разных видов деятельности.
Хорошая транспортная доступность - вблизи проспекта Просвещения — одной из ключевых магистралей района, с удобным доступом к нескольким станциям метро: «Проспект Просвещения» и «Гражданский проспект». Рядом расположены три ЖК с общей численностью более 2.7 тысячи квартир, что формирует плотный жилой массив и развитую инфраструктуру. Также объект удобно выезжать на Кольцевую автомобильную дорогу через проспекты Энгельса и Культуры.
Помещение предлагается к продаже и может быть использовано как торговая площадь, в том числе под сетевой ритейл. В соседних корпусах такие помещения уже сданы сетевикам, что подчёркивает востребованность локации.
Подробная информация
Электричество есть
Отопление есть
Канализация есть
Этаж 1
Этажей всего 5

Новости рынка элитной недвижимости
Элитное жилье — Москва
Другие проекты LifeDeluxe
Проект LifeDeluxe объединяет порталы об элитной недвижимости двух столиц и представляет рынок статусной недвижимости за рубежом. Лучшее на рынке жилой и коммерческой недвижимости Москвы и Московской области вы найдете на msk.lifedeluxe.ru. Самые выгодные предложения об инвестициях в недвижимость за границей собраны на world.lifedeluxe.ru. Мы помогаем сделать правильный выбор.
Аналитика и обзоры рынка