Санкт-Петербург

Петро-Славянка, Красноармейская ул., д.4

Продажа элитной квартиры, 140 м2
45 млн. руб.
RUB
321 429 руб. за м2
+7 (812) 3333999
Площадь
140 м2
Этаж
4
Метро
Технологич. ин-т
Задать вопрос
+7 (812) 3333999

ID: 1916871
ВАШЕМУ ВНИМАНИЮ в ПРОДАЖЕ Просторная, светлая квартира в историческом центре Петербурга.
Идеальное предложение для тех, кто ищет комфорт современного жилья в эстетике старого города. 3 минуты пешком до м. «Технологический институт».
ПРЯМАЯ ПРОДАЖА. Квартира освобождена от личных вещей, Один взрослый собственник.
Продается с мебелью и техникой — заезжай и живи.
О доме:
Доходный дом 1860 года постройки в стиле неоклассицизм архитектор - Розинский, не внесён в список культурного наследия, не является памятником. Реконструкция в 1956 году, кап. ремонт в 2006 г. В доме 1 парадная, без коммунальных квартир.
Соседи - Интеллигентные люди.
Безопасность:
Напротив расположено Генконсульство. Круглосуточная охрана, множество камер видеонаблюдения, что обеспечивает спокойную жизнь в данной локации.
В пешей доступности: Сад Олимпия, Польский сад, Сад Валентина Пикуля, р. Фонтанка. наб. Обводного канала.
О квартире:
В квартире выполнен качественный евро- ремонт. Установлены:
-Система сигнализации
-Хорошая входная дверь с электронным современным замком.
-Система кондиционирования, все разрешения получены.
-теплые полы.
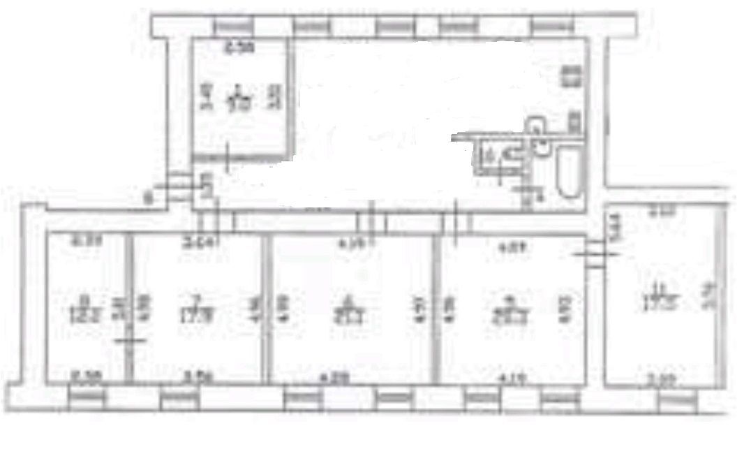
Всего 5 смежно- изолированных комнат (3 спальни и 2 кабинета) и кухня - гостиная.
Гардеробная в прихожей.
Большая ванная комната с местами хранения и техникой, так же гостевая туалетная комната с душем.
Инфраструктура развита на 100 баллов.
Звоните, записывайтесь на просмотр Вашей будущей квартиры.

Подробнее
Подробные характеристики
Этаж 4 Общая площадь 140 кв.м.
Жилая площадь 91 кв.м. Число комнат 5
Площадь кухни 30 кв.м. Состояние ремонта Дизайнерский
Район Адмиралтейский Метро Технологич. ин-т
Размещено 20 апреля 2026 г.
Петро-Славянка, Красноармейская ул., д.4
+7 (812) 3333999
Позвонить
Новости рынка элитной недвижимости
Элитное жилье — Москва
Другие проекты LifeDeluxe
Проект LifeDeluxe объединяет порталы об элитной недвижимости двух столиц и представляет рынок статусной недвижимости за рубежом. Лучшее на рынке жилой и коммерческой недвижимости Москвы и Московской области вы найдете на msk.lifedeluxe.ru. Самые выгодные предложения об инвестициях в недвижимость за границей собраны на world.lifedeluxe.ru. Мы помогаем сделать правильный выбор.
Аналитика и обзоры рынка