Санкт-Петербург

Депутатская ул., д.26

Продажа элитной квартиры, 235 м2
Объект в архиве или продан


Отсутствие данного объекта в базе сайта LifeDeluxe.ru означает, что размещение объявления приостановлено продавцом. При этом сам объект может по-прежнему находиться в продаже. Если вы хотите получить информацию по этому или похожим объектам - оставьте заявку и мы подберем для Вас интересные объекты.


Оставить заявку на
подбор объекта
Площадь
235 м2
Этаж
5
Метро
Крестовский о-в
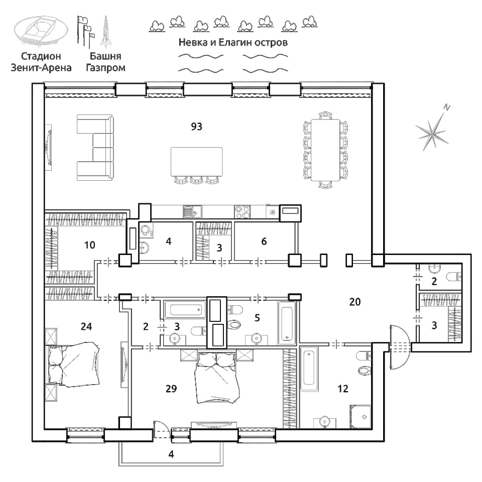
Венеция, Крестовский, прямой вид на воду.
Фантастический вид на Невку и Елагин. Высокий этаж. Арочные окна. Башня Газпрома, Флаги и Крестовский как на ладони. Потолки 3.3 м. 2 паркинга, кладовка.
Действительно редкая квартира в лучшей части Крестовского острова — такая появляется раз в 2-3 года.
Планировка хороша и может быть доведена до совершенства. Сейчас включает в себя гостеприимный холл с гардеробной и гостевым санузлом, приватную хозяйскую зону и просторное гостевое пространство. Изюминка квартиры — это несомненно гостевое пространство. Более 90 м² с прямым видом на воду. Это один из лучших видов в городе — излучина Невки, Елагин, все новые доминанты. Четыре больших окна, два из которых арочные — выгляди очень эффектно. Само пространство поделено на три функциональные зоны — обеденную зону с большим столом на 12 персон, диванную зону и зону кухни с отдельным островом, за которым можно удобно расположиться с чашкой кофе. Кухня вся укомплектована техникой Kuppersbusch, в том числе винный шкаф и холодильник. Сама кухня от известного бренда LEICHT. Приватная хозяйская зона отделена от остальной части квартиры. Включает в себя мастер спальню родителей, большую детскую комнату с балконом и со своей ванной комнатой, постирочную, гардеробные и комнату для мини спортивного зала. Вся мебель от итальянских и немецких брендов Besana и Bod'or КТМ.
Сам дом закрытый и приватный, под надежной охраной. Для Вас собственный парк с ландшафтным дизайном, зонами отдыха и детской площадкой. Наслаждаться природой можно прямо не выходя за территорию дома. Рядом лучшие школы, спортивные клубы и рестораны. Купите и живите счастливо.
Общая площадь 234 м² + балкон 4.4м² (приведенная площадь 1.3м²). Стоимость за метр рассчитана включая приведенную площадь.
Подробнее
Подробные характеристики
Этаж 5 Общая площадь 235 кв.м.
Жилая площадь 53 кв.м. Число комнат 2
Площадь кухни 93 кв.м. Паркинг есть
Район Петроградский Метро Крестовский о-в
Локация Крестовский Балкон Есть балкон
Новости рынка элитной недвижимости
Элитное жилье — Москва
Другие проекты LifeDeluxe
Проект LifeDeluxe объединяет порталы об элитной недвижимости двух столиц и представляет рынок статусной недвижимости за рубежом. Лучшее на рынке жилой и коммерческой недвижимости Москвы и Московской области вы найдете на msk.lifedeluxe.ru. Самые выгодные предложения об инвестициях в недвижимость за границей собраны на world.lifedeluxe.ru. Мы помогаем сделать правильный выбор.
Аналитика и обзоры рынка