Санкт-Петербург

Подвойского ул., д.46

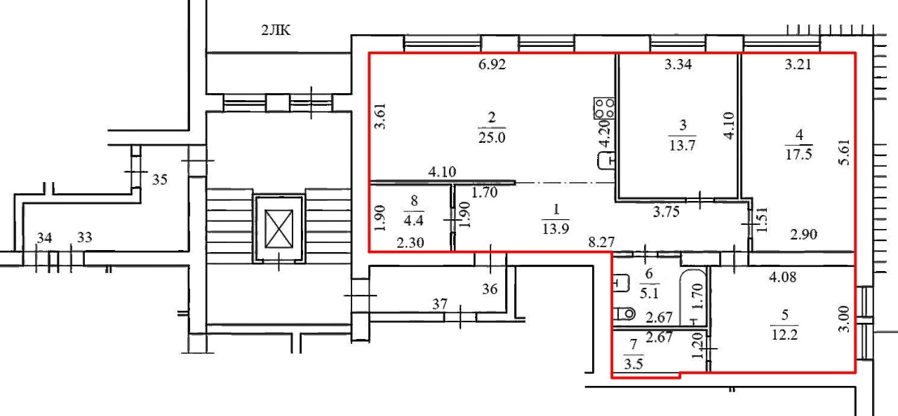
Продажа квартиры бизнес-класса, 95.3 м2
Объект в архиве или продан


Отсутствие данного объекта в базе сайта LifeDeluxe.ru означает, что размещение объявления приостановлено продавцом. При этом сам объект может по-прежнему находиться в продаже. Если вы хотите получить информацию по этому или похожим объектам - оставьте заявку и мы подберем для Вас интересные объекты.


Оставить заявку на
подбор объекта
Площадь
95.3 м2
Этаж
2
Район
Невский
Метро
пр. Большевиков

ID: 1914303
Продается очень комфортная 3-х комнатная квартира 95.3 кв. м. с большой кухней-гостиной в кирпичном доме в 25 минутах пешком от метро Большевиков.
Квартира после полного капитального ремонта - с отделкой White Box.
Был произведен полный демонтаж старой отделки. Работы, которые были сделаны:
- Полная замена сетей водоснабжения и водоотведения с прокладкой всей внутренней разводки до точек водопотребления;
- Замена электроснабжения с прокладкой всей внутренней разводки;
* Сделана качественная стяжка пола под финишное покрытие;
- Механизированная штукатурка стен:
- Шпатлевка и подготовка стен под чистовую отделку;
- Заменены стояки отопления и установлены новые радиаторы;
- Установлены новые стеклопакеты и подоконники.
На территории сделано озеленение. Детская и спортивная площадки во дворе.
Очень удобное транспортное сообщение: по 25 мин пешком до двух станций метро пр. Большевиков и Дыбенко.
Развитая инфраструктура - рядом детские сады и школы.
В шаговой доступности находятся продуктовые, сетевые магазины, аптека, салон красоты и т. д.
Квартира продается от юр. Лица.
Звоните, на все вопросы с удовольствием отвечу. Просмотры в удобное для вас время.

Подробнее
Подробные характеристики
Этаж 2 Общая площадь 95.3 кв.м.
Жилая площадь 43.4 кв.м. Число комнат 3
Площадь кухни 25 кв.м. Состояние ремонта Требует ремонта
Район Невский Метро пр. Большевиков
Новости рынка элитной недвижимости
Элитное жилье — Москва
Другие проекты LifeDeluxe
Проект LifeDeluxe объединяет порталы об элитной недвижимости двух столиц и представляет рынок статусной недвижимости за рубежом. Лучшее на рынке жилой и коммерческой недвижимости Москвы и Московской области вы найдете на msk.lifedeluxe.ru. Самые выгодные предложения об инвестициях в недвижимость за границей собраны на world.lifedeluxe.ru. Мы помогаем сделать правильный выбор.
Аналитика и обзоры рынка